Daftar Harga Pembatas Jalan Beton Precast 2026
Pembatas jalan beton (road barrier) adalah elemen penting dalam pengamanan lalu lintas dan batas proyek konstruksi. Digunakan untuk mengatur alur kendaraan, melindungi zona kerja, serta mengurangi dampak kecelakaan di jalan raya dan area padat aktivitas.
Trimitra Maju Persada memproduksi road barrier beton precast dengan mutu beton K-300, menggunakan material berkualitas dan metode produksi yang presisi.
Ukuran Pembatas Jalan Beton

Berikut daftar ukuran pembatas jalan beton precast yang kami produksi:
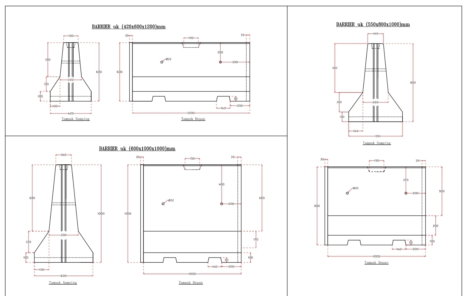
| No | Tinggi (cm) | Lebar (cm) | Panjang (cm) |
|---|---|---|---|
| 1 | 60 | 42 | 120 |
| 2 | 80 | 55 | 100 |
| 3 | 100 | 60 | 100 |
Kami juga menyediakan layanan custom untuk menyesuaikan desain dan ukuran sesuai kebutuhan proyek Anda.
Wilayah Jangkauan Pengiriman

Kami melayani pengiriman pembatas jalan beton ke seluruh wilayah Sulawesi Selatan dan sekitarnya, termasuk:
Makassar, Gowa, Maros, Pangkep, Parepare, Palopo, Bone, Bulukumba, Bantaeng, Jeneponto, Takalar, Barru, Enrekang, Wajo, Soppeng, Luwu, Luwu Timur, Luwu Utara, Sidrap, Pinrang, Selayar, Sinjai, Toraja, Toraja Utara.
Serta ke ibu kota provinsi lain seperti: Mamuju, Palu, Kendari, Manado, dan Gorontalo.
Keunggulan Produk Kami

-
✅ Beton mutu K-300
-
✅ Stabil dan tahan benturan
-
✅ Ukuran standar dan custom tersedia
-
✅ Cocok untuk jalan raya, kawasan industri, dan bandara
-
✅ Produksi berkualitas dan siap kirim
Mengapa Harga Tidak Dicantumkan?
Harga pembatas jalan beton precast tidak dicantumkan langsung karena:
-
📦 Bervariasi tergantung volume pemesanan
-
🚛 Dipengaruhi biaya mobilisasi ke lokasi proyek
-
⚙️ Menyesuaikan spesifikasi custom dan permintaan desain
-
🧱 Ditentukan oleh kualitas mutu dan metode produksi
Untuk mendapatkan penawaran harga terbaik, silakan hubungi kami:
📲 WhatsApp: 0821-5151-0506





